广西北海柯家六层现代别墅
- 002141
- 102.00 万元
- 732.00 ㎡
- 119.00 ㎡
- 11.60 米
- 11.10 米
- 3 开间
- 13 间
- 6 层
- 现代
- 框架结构
- 广西壮族自治区/北海市
- 有露台,平屋顶,有庭院,北楼梯,3开间,10卧室以上,带电梯
项目简介
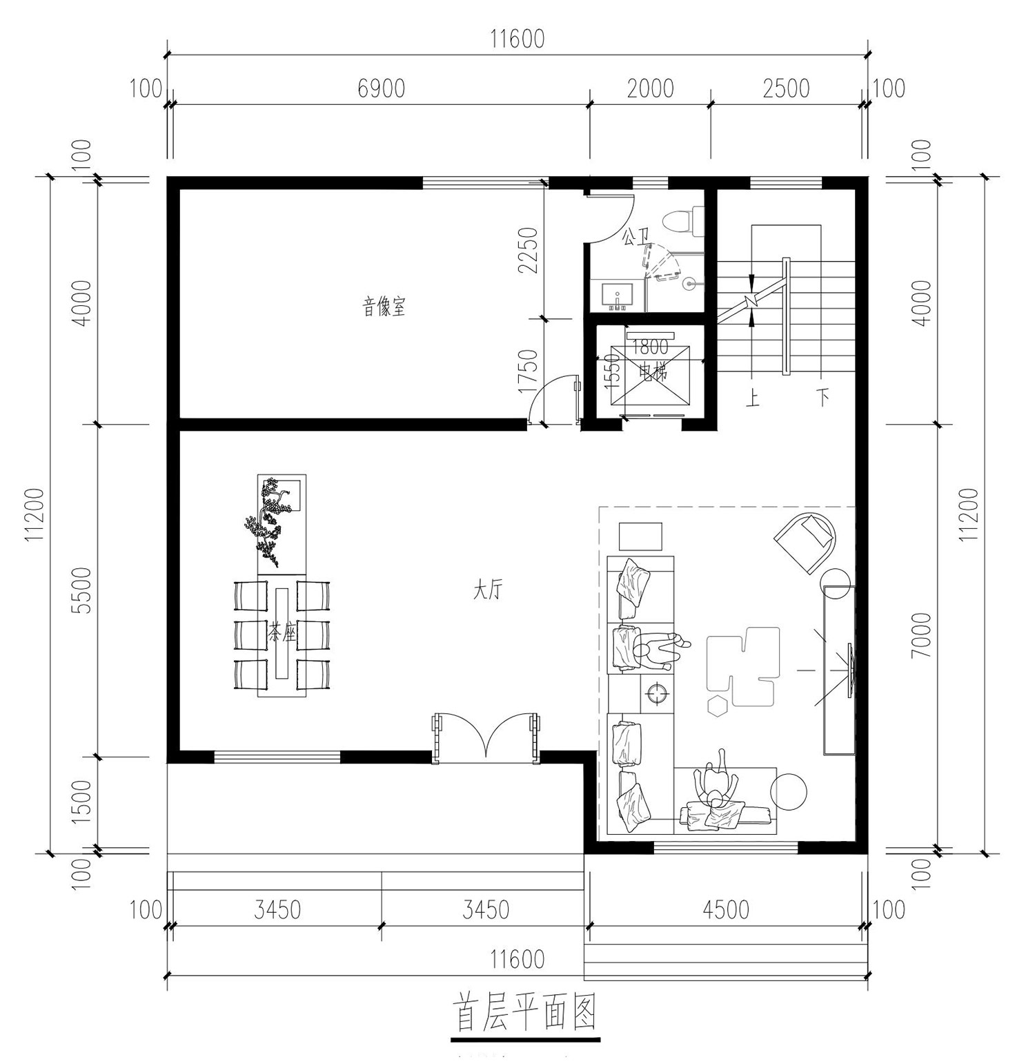
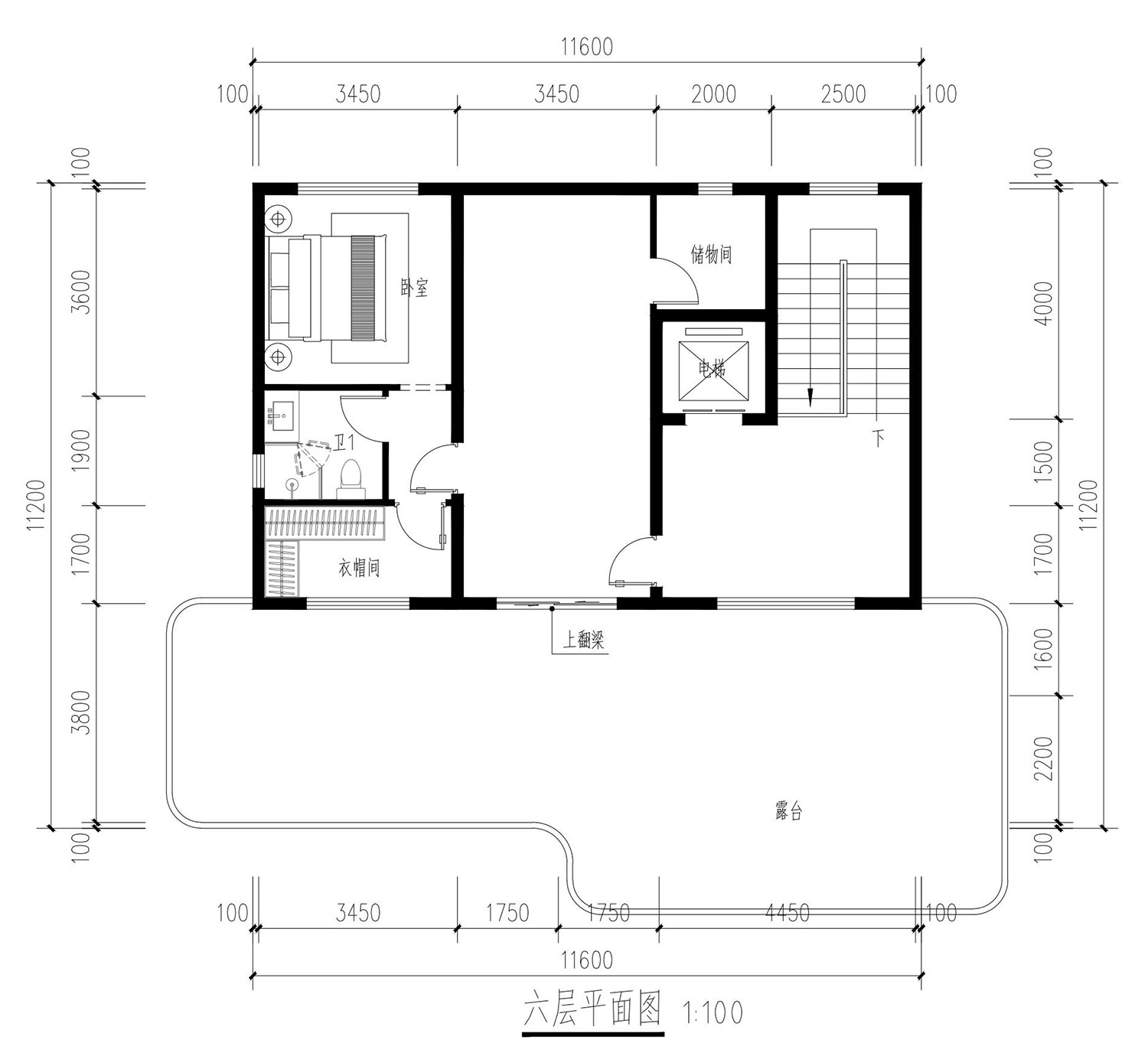
平面图
效果图
