广东佛山潘家四层现代别墅
- 002139
- 27.00 万元
- 193.00 ㎡
- 193.00 ㎡
- 6.20 米
- 11.20 米
- 2 开间
- 4 间
- 4 层
- 现代
- 砖混结构
- 广东省/佛山市
- 有露台,平屋顶,北楼梯,2开间,4卧室
项目简介
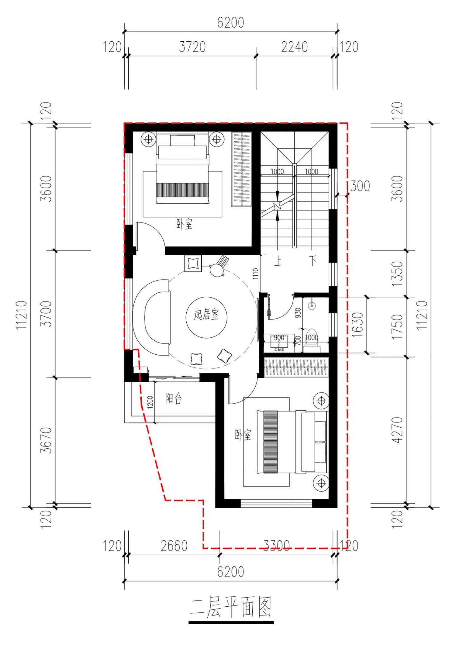
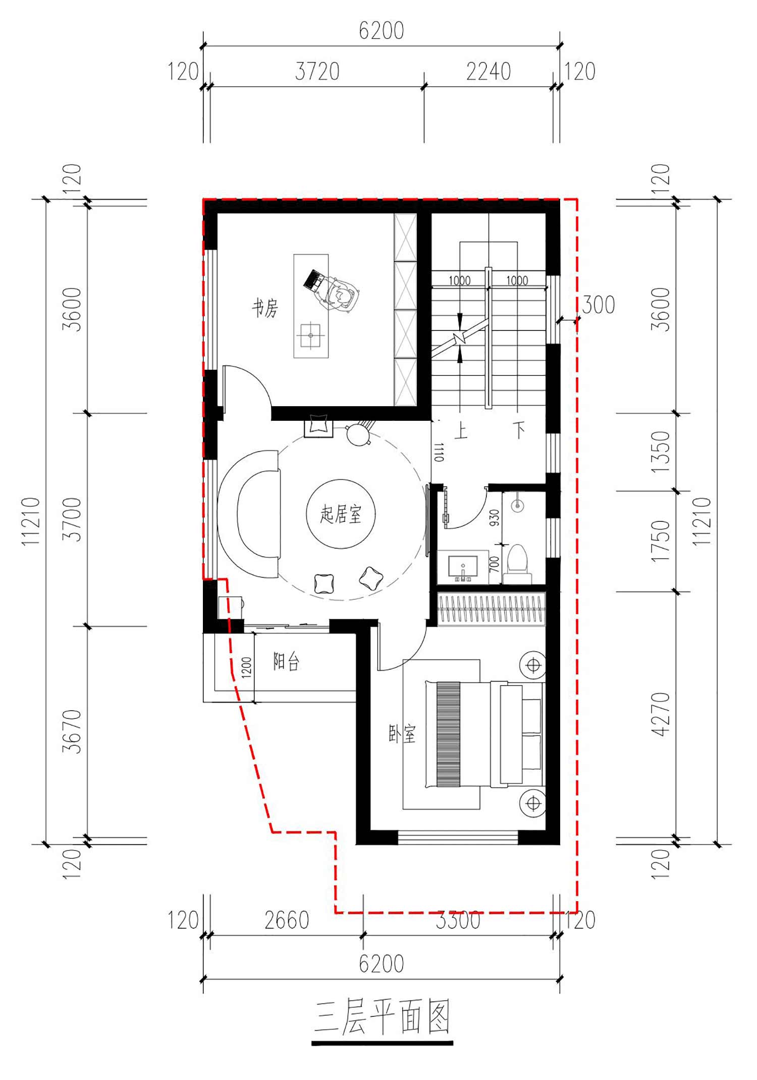
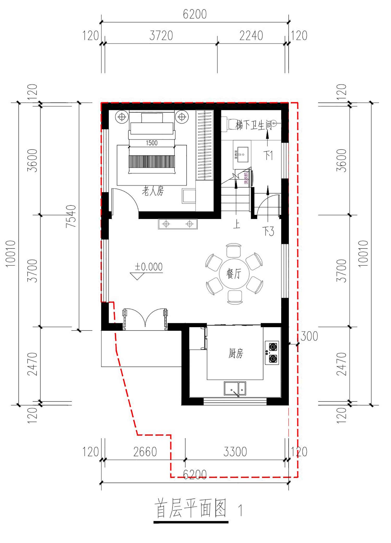
平面图
效果图
