山东菏泽徐家二层欧式自建别墅
- 002129
- 82.00 万元
- 585.00 ㎡
- 333.00 ㎡
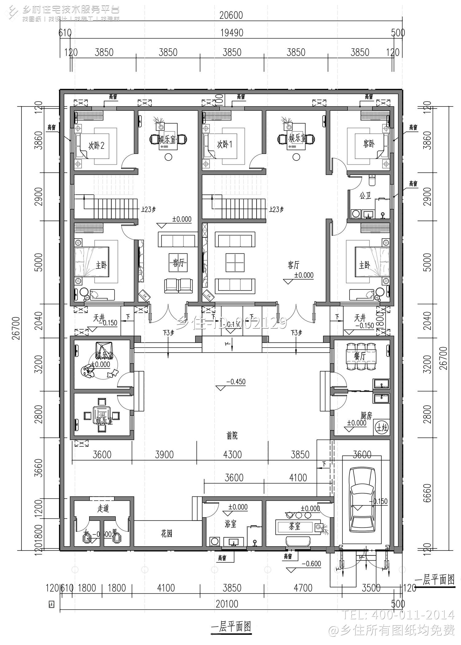
- 19.40 米
- 26.70 米
- 5 开间
- 10 间
- 2 层
- 热门精品,欧式,左右对称,双拼
- 砖混结构
- 山东省/菏泽市
- 有车库,有露台,坡屋顶,有庭院,有闷顶,东楼梯,西楼梯,5开间,9-10卧室
项目简介
平面图
效果图
