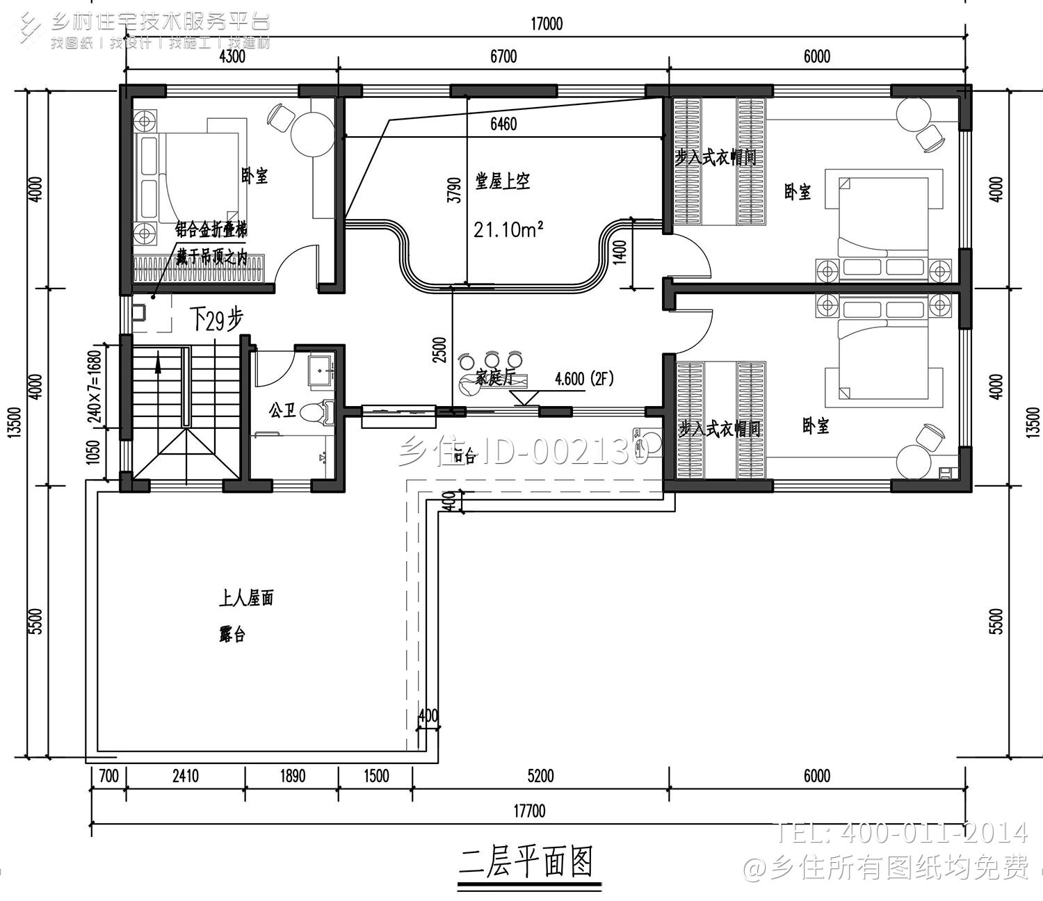
贵州六盘水雷家二层新中式别墅
- 002130
- 40.00 万元
- 282.00 ㎡
- 161.00 ㎡
- 17.00 米
- 13.50 米
- 3 开间
- 4 间
- 2 层
- 热门精品,实用,新中式
- 框架结构
- 贵州省/六盘水市
- 有露台,坡屋顶,有挑空,有庭院,西楼梯,3开间,4卧室
项目简介
平面图
效果图
