浙江|舟山
[切换]
咨询热线:
400-011-2014
施工队登录
施工队注册
个人中心
首页
免费设计
免费图纸
找施工队
工地地图
造价测算
同城建材
微信公众号
下载APP
免费下载施工图
下载预算表
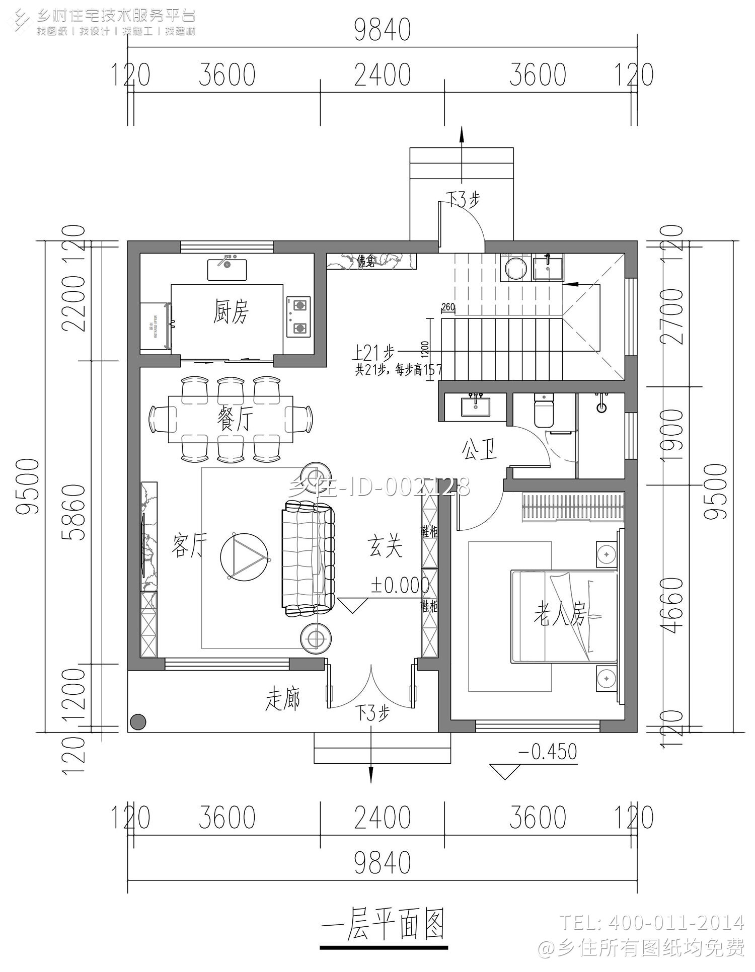
江苏南京谷家二层新中式别墅
图纸编号
002128
土建造价
25.00 万元
建筑面积
176.00 ㎡
占地面积
90.00 ㎡
面 宽
9.80 米
进 深
9.50 米
开间数量
3 开间
卧室数量
3 间
建筑层数
2 层
建筑风格
热门精品,实用,中式,新中式
结构形式
砖混结构
所在城市
江苏省/南京市
建筑特征
坡屋顶,贴邻居,有闷顶,东楼梯,3开间,3卧室
项目简介
平面图
效果图
尺寸不符-AI免费设计一下
省份
城市
生成预算表
每人最多可免费下载1套
请输入手机号码进行验证
您的手机号码:
请输入验证码:
是否需要推荐施工队为您报价:
需要
不需要
验证后免费下载
付费下载全套图纸源文件压缩包
添加客服微信获取多套图纸(免费)
如果下载图纸不合适
需要多套图纸
请添加客服微信获取
造价
测算
AI
免费
设计
搜索
图纸
施工队入驻申请
公司/施工队名:
联系人姓名:
您的手机号码:
请输入验证码:
施工队介绍:
提交入驻申请