湖南永州陈家三层欧式自建别墅
- 002127
- 55.00 万元
- 394.00 ㎡
- 151.00 ㎡
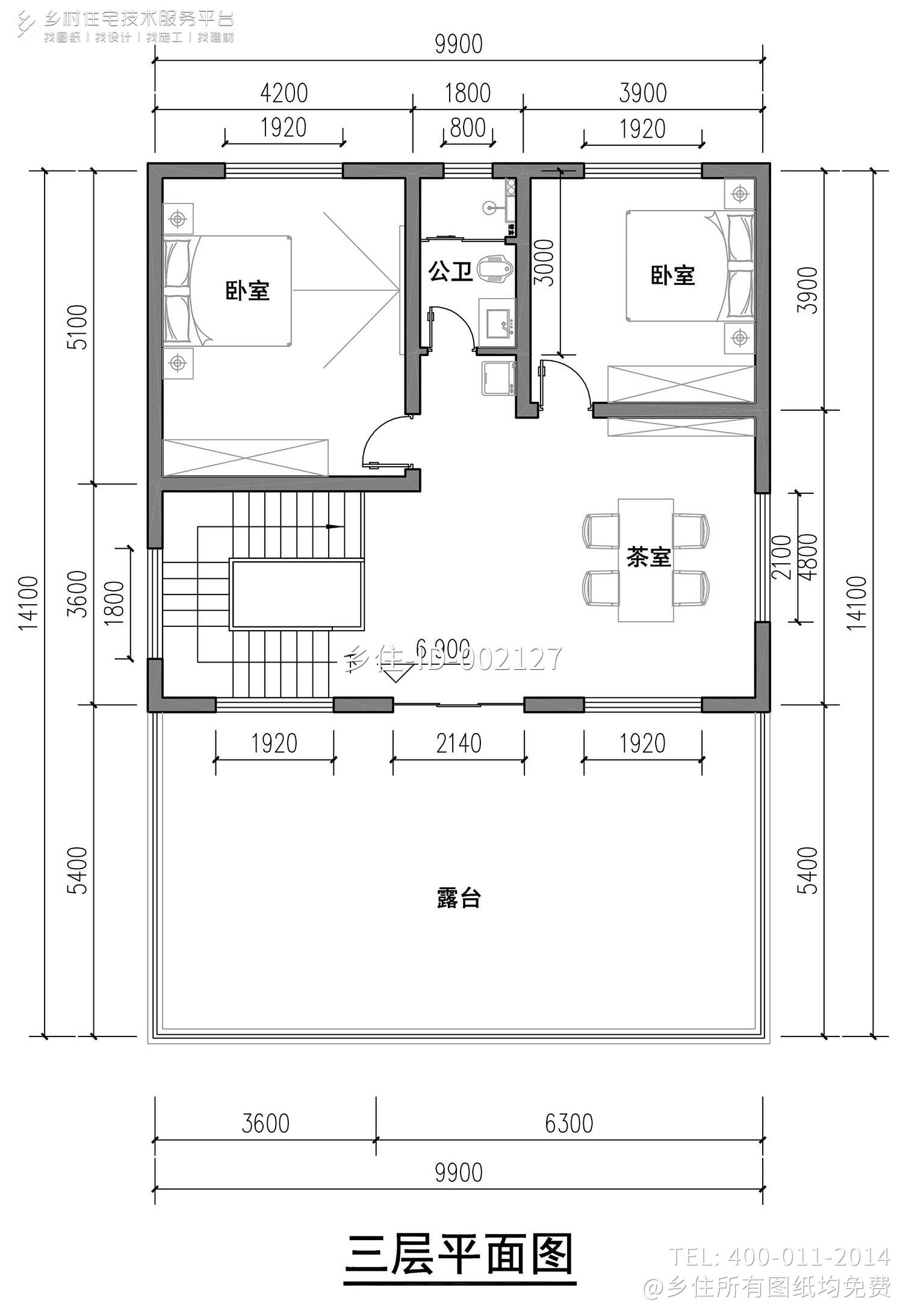
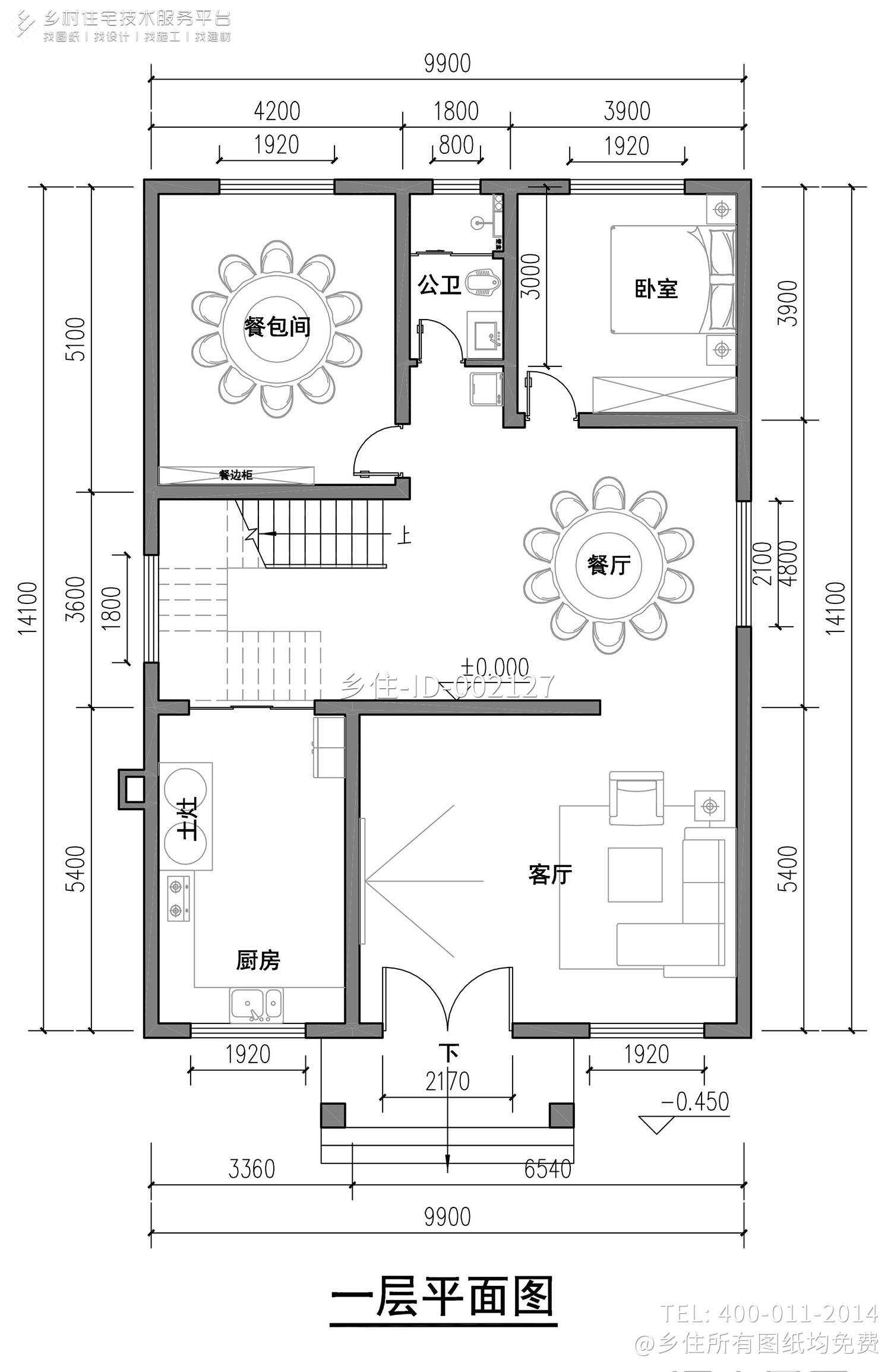
- 9.90 米
- 14.10 米
- 2 开间
- 6 间
- 3 层
- 热门精品,欧式,实用
- 砖混结构
- 湖南省/永州市
- 有露台,坡屋顶,有土灶,有闷顶,西楼梯,2开间,6-7卧室,三跑楼梯
动态视频
项目简介
平面图
效果图
