河南焦作皇甫家二层新中式别墅
- 002126
- 38.00 万元
- 270.00 ㎡
- 127.00 ㎡
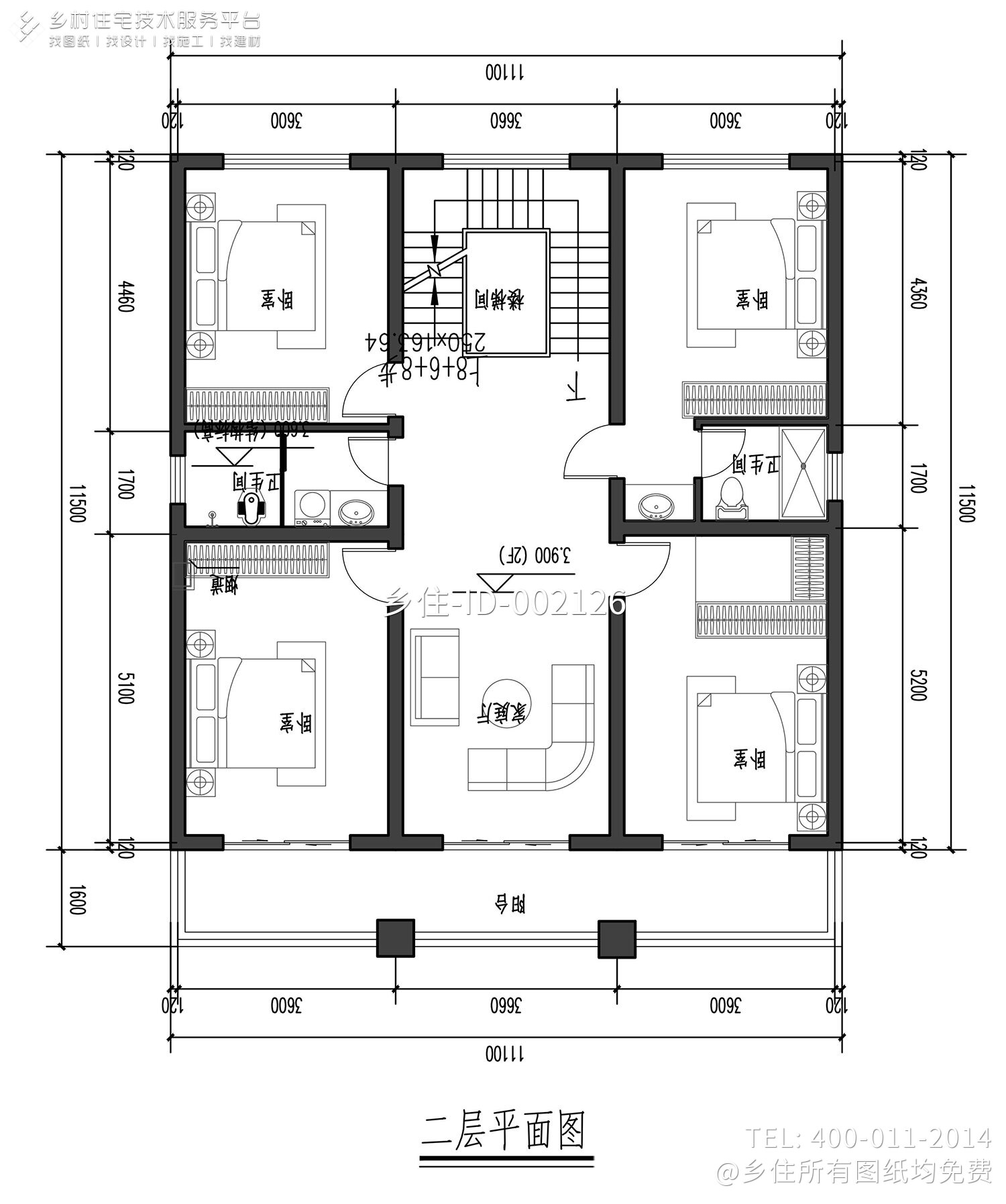
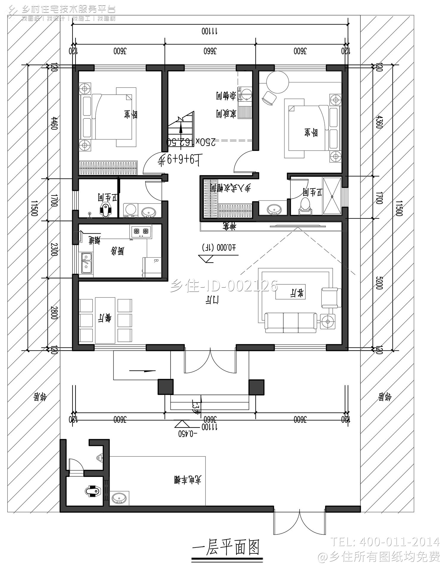
- 11.10 米
- 11.50 米
- 3 开间
- 6 间
- 2 层
- 热门精品,实用,新中式,左右对称
- 砖混结构
- 河南省/焦作市
- 有露台,坡屋顶,有庭院,有闷顶,北楼梯,3开间,6-7卧室,三跑楼梯
动态视频
项目简介
平面图
效果图
