江苏扬州管家三层欧式自建别墅
- 002120
- 107.00 万元
- 771.00 ㎡
- 236.00 ㎡
- 16.40 米
- 15.50 米
- 3 开间
- 6 间
- 3 层
- 热门精品,欧式
- 框架结构
- 江苏省/扬州市
- 有露台,坡屋顶,有闷顶,北楼梯,3开间,6-7卧室,三跑楼梯,带电梯
项目简介
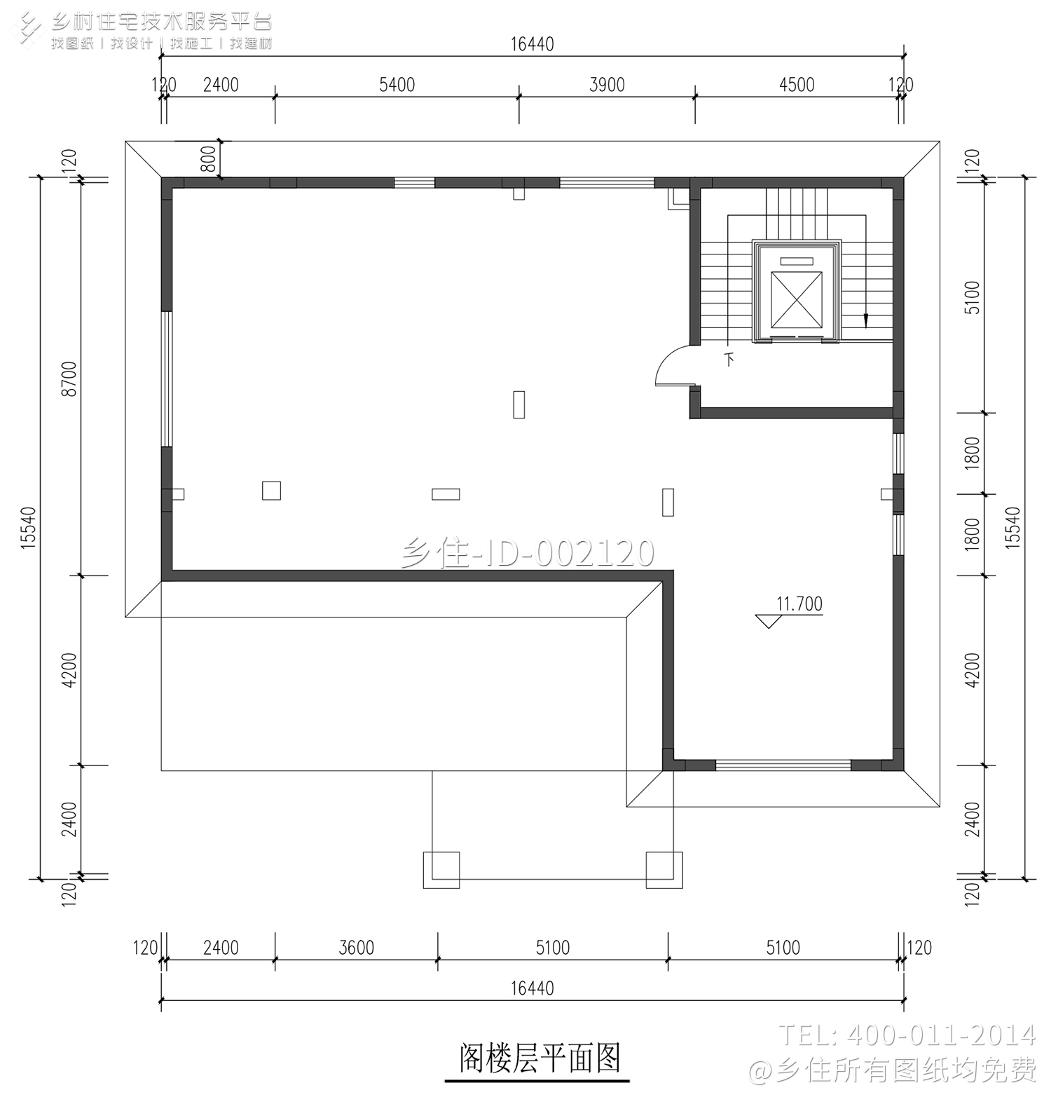
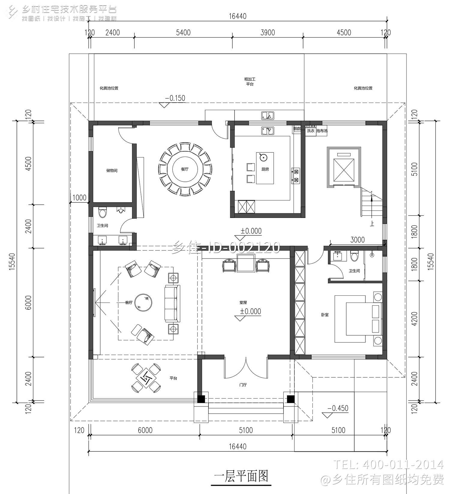
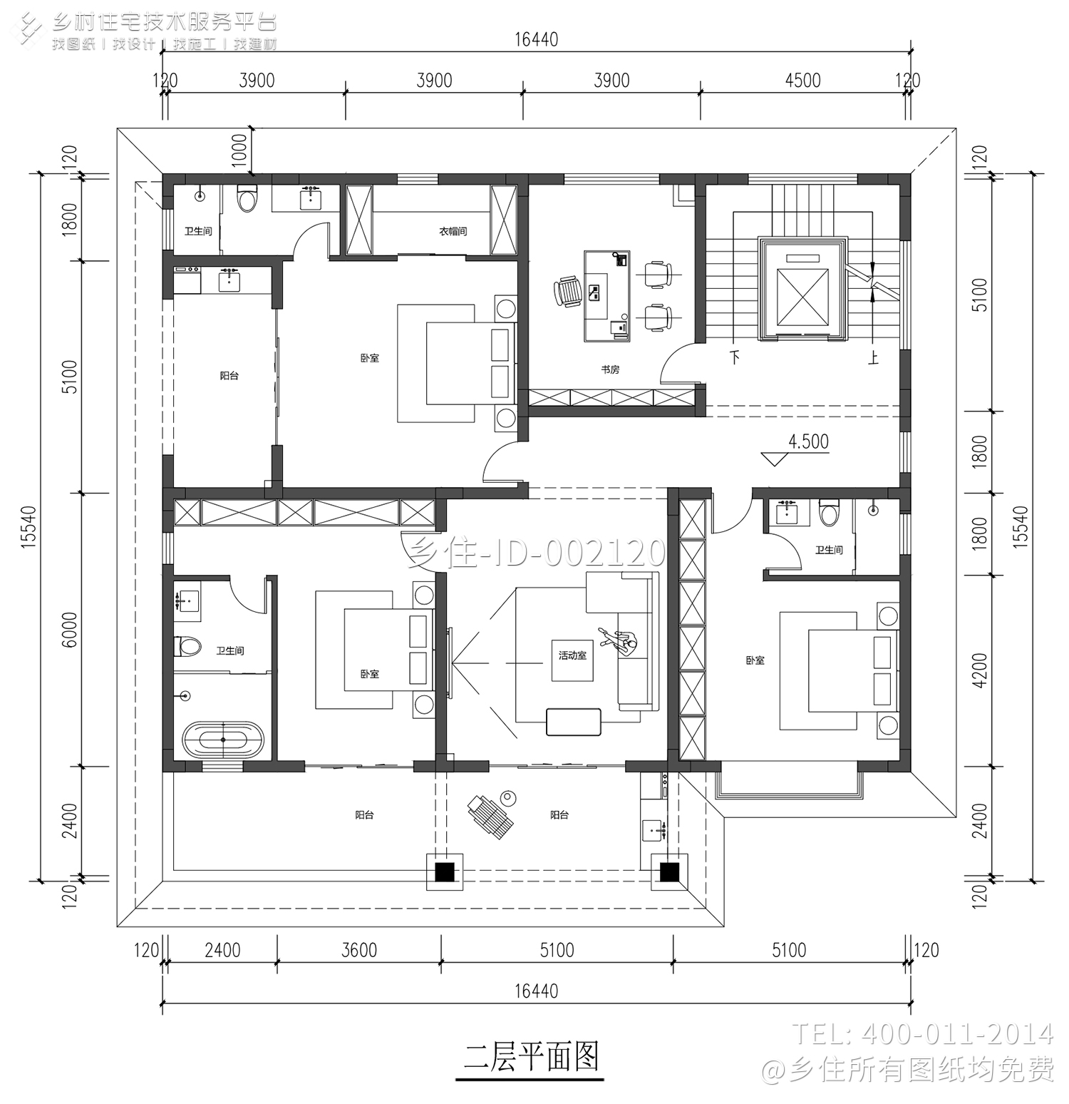
平面图
效果图
