广西|崇左 [切换]
咨询热线:400-011-2014
施工队登录
施工队注册
个人中心
免费下载施工图

江西吉安钟家三层欧式自建别墅

项目简介
江西吉安钟家三层欧式自建别墅
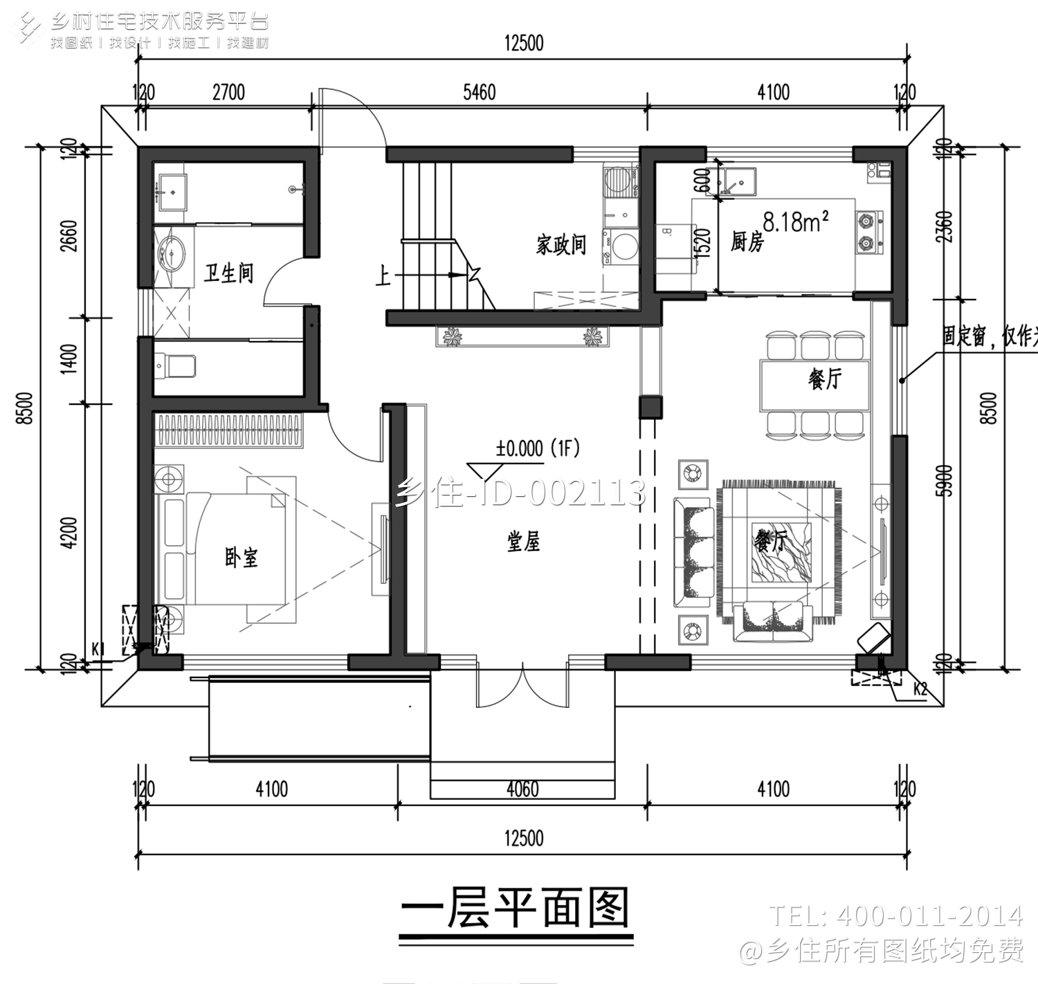
平面图
江西吉安钟家三层欧式自建别墅	江西吉安钟家三层欧式自建别墅
效果图
江西吉安钟家三层欧式自建别墅	江西吉安钟家三层欧式自建别墅	江西吉安钟家三层欧式自建别墅